| |
|
五、C2H2V/N型内外筒式乙炔回火防止器
|
1、产品用途
内外筒式乙炔回火防止器为防爆产品。适用于乙炔气(或其它可燃气体)管道中间和乙炔气用户点,能有效防止和消除管道回火。其原理是:在产生管道回火的情况下,(1)由于瞬时压力升高时使位于底部的阀芯下落堵位气口及时切断气源;(2)当瞬时压力升高到大于0.177~0.275MPa时,设置在筒体顶部的安全膜片爆破随即泄压,切断火源,确保系统安全。对于乙炔气或其它液化气的供应单位和使用单位来说,如果还没有其它能有效防止回火措施的话,本产品应是不可缺少的。
2、结构特点
2.1内筒体顶端为安全膜盖结构,当系统压力升至0.177~0.275MPa时膜片会自动爆破泄压。因此用户在调换膜片时,不得使用厚度超过0.05的铝板,且一定要经过试验后才能安装。
2.2内外筒体具有贮气,稳压作用,能减少供气压力的波动,有利于平稳燃烧。
2.3本产品在使有用前应拧开水位阀芯,从孔口灌水至溢出即拧紧,不得漏气和漏水,灌水具有防止回火和清选 气体的作用。
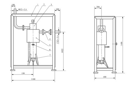
3、产品外形尺寸及部件名称见下图 |
|
|
| 4、主要技术参数 |
|
公称通径(mm)
|
DN25
|
|
设计压力(MPa)
|
PN0.15
|
|
使用压力(MPa)
|
PN0.02~0.12
|
|
使用温度(℃)
|
常温
|
|
流量(Nm3/h)
|
35
|
|
爆破压力(MPa)
|
PN0.177~0.275
|
|
重量(kg)
|
220
|
|
| 说明:连接法兰按JB/T81-94设计制造,用户如需选用其它标准和规格的连接法兰,请在订货中说明。 |
| |