您的当前位置:首页 >> 产品介绍
 
 
 
 
 
 
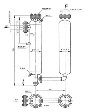
四、BC2H2-10m3/h中央乙炔回火防止器
1、用途
  本设备又称中央水封,适用于10m3/h以下的乙炔气发生站。
2、结构特点
  本中央乙炔回火防止器采用湿式回水防止装置,内有制作精良的止回阀,且装有安全爆破膜结构。
3、产品技术参数