| |
|
一、粗过滤器系列
|
| (二)SBL型篮式过滤器 |
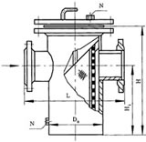
1、篮式直通法兰连接式过滤器(SBL I型)见图14、表14(DN25~300,PN≤5.0MPa)
SBL I型、SBL I M型 表14 |
|
公称直径
DN
|
结构尺寸
|
管塞N
|
|
L
|
H
|
H1
|
D0
|
|
25
|
180
|
260
|
160
|
Φ76
|
ZG3/4"
|
|
32
|
200
|
270
|
160
|
Φ76
|
ZG3/4"
|
|
40
|
260
|
300
|
170
|
Φ108
|
ZG3/4"
|
|
50
|
260
|
300
|
170
|
Φ108
|
ZG3/4"
|
|
65
|
330
|
360
|
210
|
Φ133
|
ZG3/4"
|
|
80
|
340
|
400
|
250
|
Φ159
|
ZG3/4"
|
|
100
|
400
|
470
|
300
|
Φ219
|
ZG3/4"
|
|
125
|
480
|
550
|
360
|
Φ273
|
ZG3/4"
|
|
150
|
500
|
630
|
420
|
Φ273
|
ZG3/4"
|
|
200
|
560
|
780
|
530
|
Φ325
|
ZG3/4"
|
|
250
|
660
|
930
|
640
|
Φ426
|
M20×1.5
|
|
300
|
750
|
1200
|
840
|
Φ478
|
M20×1.5
|
|

图14 SBL I型
|
|
| 2、 篮式重叠直通法兰连接式过滤器(SBL I M型)见图15、表14(DN25~300,PN≤5.0MPa)
|
|
|
3、 篮式带夹套直通法兰连接式过滤器(SBL I F型)见图16、表15(DN25~200,PN≤5.0MPa)
SBL I F型 表15 |
|
公称直径
DN
|
公称压力
PN
|
结构尺寸
|
夹 套
|
管 塞
N
|
|
H
|
H
|
H1
|
蒸汽压力
|
D
|
进口a
|
出口b
|
|
25
|
≤5.0MPa
|
215
|
350
|
180
|
≤0.6MPa
|
Φ108
|
G3/4"
|
G3/4"
|
ZG3/4"
|
|
32
|
235
|
360
|
180
|
Φ108
|
G3/4"
|
G3/4"
|
|
40
|
300
|
430
|
210
|
Φ159
|
G3/4"
|
G3/4"
|
|
50
|
300
|
430
|
210
|
Φ159
|
G3/4"
|
G3/4"
|
|
65
|
450
|
490
|
250
|
Φ159
|
G3/4"
|
G3/4"
|
|
80
|
460
|
530
|
290
|
Φ273
|
DN20
|
DN20
|
|
100
|
500
|
600
|
345
|
Φ325
|
DN20
|
DN20
|
|
125
|
580
|
700
|
410
|
Φ377
|
DN25
|
DN25
|
|
150
|
600
|
780
|
470
|
Φ377
|
DN25
|
DN25
|
|
200
|
660
|
930
|
580
|
Φ426
|
DN25
|
DN25
|
|
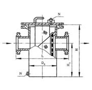
| 4、 篮式支承直通法兰连接式过滤器(SBL II型)见图17、表16(DN350~500,PN≤5.0MPa) |
|
公称直径
DN
|
公称压力
PN
|
结构尺寸
|
管 塞
N
|
|
L
|
H
|
H1
|
H2
|
D0
|
d0
|
n-Φ
|
|
350
|
≤5.0MPa
|
800
|
1680
|
300
|
1310
|
Φ500
|
Φ420
|
3-Φ20
|
ZG1"
|
|
400
|
840
|
1850
|
300
|
1450
|
Φ550
|
Φ450
|
3-Φ20
|
ZG1"
|
|
450
|
960
|
2050
|
300
|
1610
|
Φ600
|
Φ520
|
3-Φ24
|
ZG1"
|
|
500
|
1060
|
2210
|
300
|
1740
|
Φ700
|
Φ620
|
3-Φ24
|
ZG1"
|
|
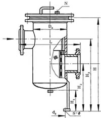
5、 篮式盘管直通法兰连接式过滤器(SBL II P型)见图18、表17(DN250~500,PN≤5.0MPa)
SBL II P型 表17 |
|
公称直径
DN
|
公称压力
PN
|
结构尺寸
|
夹 套
|
管 塞
N
|
|
L
|
H
|
H1
|
H2
|
D0
|
d0
|
n-Φ
|
蒸汽压力
|
a、b
|
|
250
|
≤5.0MPa
|
660
|
1230
|
940
|
300
|
Φ426
|
Φ350
|
3-Φ20
|
≤4.0MPa
|
DN15
|
ZG1"
|
|
300
|
750
|
1500
|
1140
|
300
|
Φ478
|
Φ400
|
3-Φ20
|
DN15
|
|
350
|
800
|
1680
|
1310
|
300
|
Φ200
|
Φ420
|
3-Φ20
|
DN20
|
|
400
|
840
|
1850
|
1450
|
300
|
Φ550
|
Φ450
|
3-Φ20
|
DN20
|
|
450
|
960
|
2050
|
1610
|
300
|
Φ600
|
Φ520
|
3-Φ24
|
DN20
|
|
500
|
1060
|
2210
|
1740
|
300
|
Φ700
|
Φ620
|
3-Φ24
|
DN25
|
|
|
|
|
|
图17 SBL II型
|
图18 SBL II P型
|
|
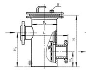
6、 篮式高低接管法兰连接式过滤器(SBL III型)见图19、表18(DN25~300,PN≤5.0MPa)
SBL III、SBLIII M型 表18 |
|
公称直径
DN
|
公称压力
PN
|
结构尺寸
|
管 塞
N
|
|
L
|
H
|
H1
|
H2
|
D0
|
|
25
|
≤5.0MPa
|
180
|
280
|
110
|
180
|
Φ76
|
ZG3/4"
|
|
32
|
200
|
285
|
10
|
180
|
Φ76
|
|
40
|
260
|
340
|
120
|
220
|
Φ108
|
|
50
|
260
|
340
|
120
|
220
|
Φ108
|
|
65
|
330
|
400
|
160
|
270
|
Φ133
|
|
80
|
340
|
460
|
180
|
320
|
Φ159
|
|
100
|
400
|
550
|
200
|
390
|
Φ219
|
|
125
|
480
|
630
|
260
|
450
|
Φ273
|
|
150
|
500
|
720
|
310
|
530
|
Φ273
|
|
200
|
560
|
900
|
390
|
670
|
Φ325
|
|
250
|
660
|
1070
|
480
|
800
|
Φ426
|
M20×1.5
|
|
300
|
750
|
1360
|
640
|
1040
|
Φ478
|
|
| 7、 篮式重叠高低接管法兰连接式过滤器(SBL III M型)见图20、表18(DN25~300,PN≤5.0MPa) |
|
|
|
|
图19 SBL III型
|
图20 SBL III M型
|
|
8、 篮式支承高低接管法兰连接式过滤器(SBL IV型)见图21、表19(DN350~500,PN≤5.0MPa)
SBL IV型 表19 |
|
公称直径
DN
|
公称压力
PN
|
结构尺寸
|
管 塞
N
|
|
L
|
H
|
H1
|
H2
|
H3
|
D0
|
d0
|
n-Φ
|
|
350
|
≤5.0MPa
|
800
|
1890
|
300
|
1070
|
1520
|
500
|
Φ420
|
3-Φ20
|
ZG1"
|
|
400
|
840
|
2000
|
300
|
1080
|
1600
|
550
|
Φ430
|
3-Φ20
|
|
450
|
960
|
2320
|
300
|
1280
|
1880
|
600
|
Φ520
|
3-Φ24
|
|
500
|
1080
|
2510
|
300
|
1390
|
2046
|
700
|
Φ620
|
3-Φ24
|
|

图21 SBL IV型
|
| |